会社情報
お庭のデザインから施工・管理まで、理想の庭を、一緒に実現しませんか?

個人事業主ならではの柔軟な対応力と丁寧な仕事で、お客様の理想のお庭づくりをサポートします。
☆細やかな打ち合わせでご要望をしっかり反映
☆中間マージンなしで適正価格を実現
☆一貫した対応で安心のクオリティ
大手にはできない、お客様に寄り添った造園サービスをご提供いたします!
お気軽にご相談ください。
あなたの理想のお庭、形にします

お庭の管理や外構工事についてのご相談、
ご質問がございましたら、お気軽にお問い合わせください。
小さなことでも構いません。
「こんなことは頼めるのかな?」といったご相談にも丁寧に対応いたします。
毎日の暮らしが楽しくなるような機能的なアプローチやお家の魅力を引き立てるお庭づくりなど、
お客様の理想やご要望を一緒に形にしていきます。
どの会社に相談すれば良いか迷っている方は、ぜひ弊社にご相談ください。
基本情報
| 企業名 | パル・プラン |
|---|---|
| 所在地 | 〒067-0002 北海道江別市緑町西1丁目23-8 |
| 交通アクセス | JR在来線江別駅より徒歩10分 |
| 設立 | 2023年4月12日 |
| 代表者氏名 | 吉田広美 |
| 対応可能エリア | 北海道 |
| 対応可能住宅タイプ | 戸建て / マンション / 事務所・店舗等 |
| 対応可能リフォーム | エクステリアリフォーム |
| 各種資格者 | 1級造園施工管理技士、1級造園技能士 管理技術者、登録造園基幹技能者 |
| 問い合わせ先 |
TEL:090-9758-7927 営業時間 8:30 ~ 17:00 (ご連絡等はいつでも対応致します) |
| 会社URL | https://pal-plan.com/ |
商品・特徴
造園工事
お庭は、家とともに暮らしを豊かにする大切な空間です。
パル・プランでは、
お客様一人ひとりのご要望に合わせた造園工事をご提案いたします。
☆和風・洋風どちらも対応!お好みに合わせたデザインをご提案
☆植栽・庭石・ウッドデッキ・人工芝など幅広い施工が可能
☆現地調査・お見積もり無料!安心のサポート体制
外構工事、エクステリア工事
お家の印象を決める外構。
パル・プランでは、
「おしゃれな玄関まわりにしたい」「駐車場を使いやすくしたい」
空間をカタチにするお手伝いをいたします!
☆門扉・フェンス・カーポート・ウッドデッキなど幅広く対応!
☆デザイン性×機能性を兼ね備えたご提案
☆現地調査・お見積もり無料!安心のサポート体制
お庭の維持管理工事
お庭は、適切なメンテナンスを続けることで、四季折々の美しさを楽しめます。
パル・プランでは、
剪定・除草・害虫対策・施肥など、お庭のトータル管理を承ります。
☆庭木の剪定・伐採で、美しく健康な樹木を維持!
☆芝生・雑草の管理で、清潔で快適な空間をキープ!
☆害虫駆除・病害対策で、大切な植物を守ります!
☆現地調査・お見積もり無料!定期管理プランもご用意!
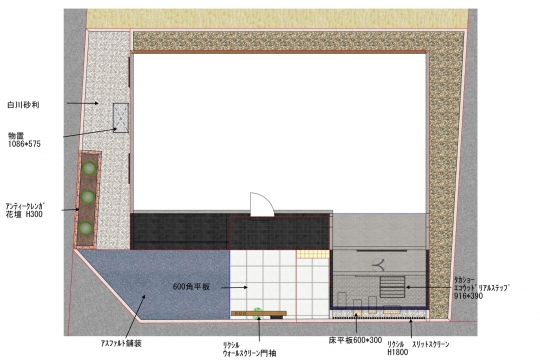
3Dパース図によるお庭の設計
「3Dパース図で理想のお庭をカタチに。完成後のイメージを事前に確認できます!」
「理想のお庭をつくりたいけど、完成後のイメージがわかない…」
そんなお悩みを解決するのが、3Dパース図を使ったお庭の設計です!
パル・プランでは、
リアルな3Dパース図を作成し、完成イメージを事前にご確認いただけます。
高さや奥行き、植栽の配置や素材感まで、細かい部分もしっかりチェック!
実例紹介
施工事例
施工事例
まだ登録がありません。

